List Price: $650,000 | $263 per sq.ft. | 5 Bedroom | 4 Bathroom | 2 Story Single Family Home
Date Listed Monday Sep 15, 2025 | MLS# 5061426


Address: 17 Signal Hill Road Winhall VT
Listed by Christiane Carroccio TPW Real Estate
Description:
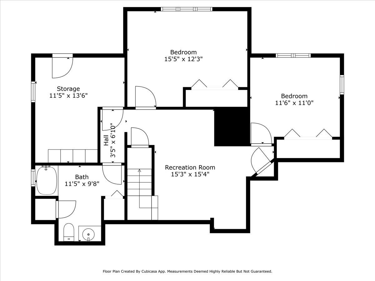
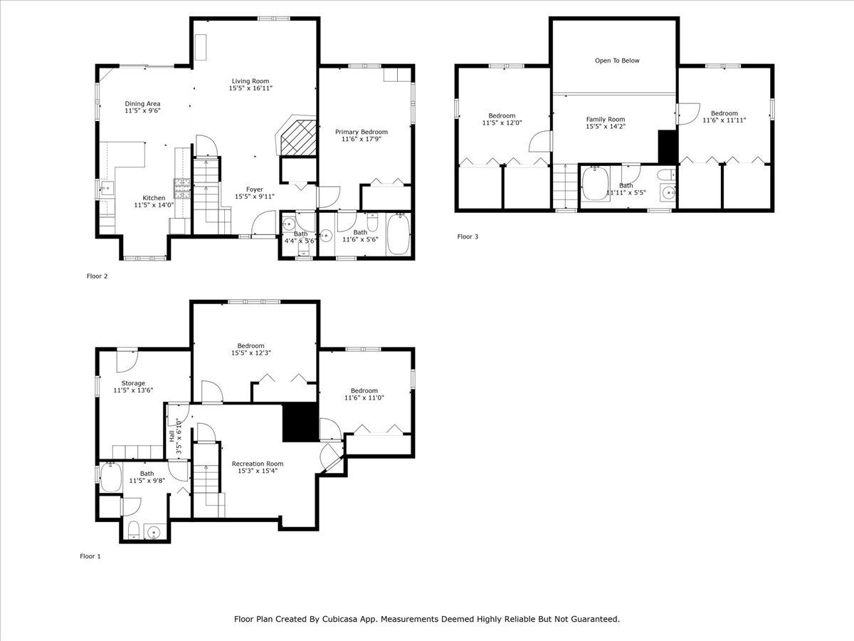
17 Signal Hill Road offers Vermont charm in a secluded mountain setting. With over 2,400 square feet of living space, this five-bedroom, three-and-a-half-bath home has been thoughtfully maintained and move-in ready. The main level features a spacious living room with a dramatic fieldstone fireplace, vaulted ceilings, and skylights that fill the home with natural light. A loft overlooking the living room provides a versatile space for reading, relaxing, or playing. The kitchen and dining area flow seamlessly into the living room, with sliding glass doors opening onto a sunny deck perfect for outdoor dining or enjoying a morning cup of coffee. The primary suite is on the main floor, with wood floors. Two bedrooms and bathroom are on the second floor, while two more bedrooms are on the lower level, along with a finished walk-out basement for flexible living. A secondary living room is also on the lowest level. A convenient mudroom entry keeps the home organized after a day on the slopes. Set on 1.3 acres with winter mountain views of Bromley Mountain. Minutes to Manchester, Stratton, and Bromley, this home is a year-round Vermont retreat.

Room Information:
Total Rooms: 9
Total Baths: 4
Full Baths: 3
1/2 Baths: 1
Bedrooms: 5
Kitchen size: 10x12
Livingroom size: 13'9"x11'4"
Bedroom 1: 6'6"x12'10"
Bedroom 2: 13'6"x9'
Bedroom 3: 15'x12'
Bedroom 4: 11'x10'3"
Family/Rec Room: 13'9"x11'4"
Basement: Finished | Full | Interior Stairs | Walkout

Construction Information:
Year Built: 1989
Type: Wood Frame | Clapboard Exterior

Building Info
Finished Sq.Ft.: 2751
Above Grade Sq.Ft.: 1772
Below Grade Sq.Ft.: 696
Apx Below Grade Unfinished Sq.Ft.: 283

Exterior Info
Style: Contemporary
Exterior Color tan
Roof: Asphalt Shingle

Utilities
Electric: Circuit Breaker(s)
Water: Drilled Well
Sewer: 1000 Gallon | Septic

Land Description:
Secluded | Wooded | Rural
Lot size: 1.3 acres
Zoned: Residential
Surveyed: Unk
Flood Zone: No
Seasonal: No
Road Frontage: 175
Driveway: Gravel

Additional Information
Taxes $8,120
Assesed Value Not Reported
Schools
School District: Bennington/Rutland
Elementary School: Choice
Middle School: Choice
High School: Choice

© 2000-2025 Big Green Real Estate
NEREN Logo
5 Old Nugget Alley, Hanover, NH 03755 603-643-3942
CONTACT STAR

Big Green Real Estate is not affiliated with nor officially sanctioned by Dartmouth College

Copyright © 2025 PrimeMLS, Inc. All rights reserved. This information is deemed reliable, but not guaranteed. The data relating to real estate displayed on this display comes in part from the IDX Program of PrimeMLS. The information being provided is for consumers’ personal, non-commercial use and may not be used for any purpose other than to identify prospective properties consumers may be interested in purchasing. Data last updated October 7th, 2025

PLEASE NOTE: Both New Hampshire and Vermont law require brokers and agents to disclose at the “time of first business meeting, prior to any discussion of confidential information”, in New Hampshire’s case, and “first reasonable opportunity”, in Vermont’s case, the nature of the relationships brokers have or may have with customers and clients. Each state requires that a disclosure form be presented to consumers for their review and acknowledgment at the appropriate time. These forms can be accessed at the following websites and you are encouraged to read these documents.Big Green Real Estate chooses as a business model to represent both buyers and sellers; please do not assume, without any contractual agreement otherwise, that Big Green Real Estate at this time represents your interests as an agent.
VT: VERMONT REAL ESTATE COMMISSION MANDATORY CONSUMER DISCLOSURE FORM
NH: NEW HAMPSHIRE REAL ESTATE COMMISSION BROKERAGE RELATIONSHIP DISCLOSURE FORM