List Price: $310,000 | $278 per sq.ft. | 2 Bedroom | 2 Bathroom | Condo
Under Contract Date Listed Friday Mar 20, 2026 | MLS# 5080088


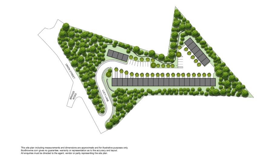
Address: 27 Lucy Lane Peterborough NH
Listed by Sadie Halliday EXP Realty Cell: 603-660-2321
Description:
Welcome to Our Town Village, a brand-new townhome community coming to Peterborough, New Hampshire, with first homes ready for occupancy in Spring 2026. Designed for comfort, style, and energy efficiency, these 2-bedroom, 1.5-bath townhomes combine modern finishes with a low-maintenance lifestyle in the heart of the Monadnock Region. The open-concept kitchen and dining area flow into a spacious living room, ideal for entertaining or everyday living. The first floor also features a powder room, generous closet space, and direct access to a ground level garage in select units. Upstairs offers two bright bedrooms, a full bath with direct access from the primary bedroom, and a dedicated laundry room with additional storage space. Located just minutes from downtown Peterborough, residents will enjoy easy access to shops, restaurants, and cultural attractions, plus year-round outdoor recreation including hiking, biking, and nearby Mount Monadnock. Within walking distance, you'll find grocery stores, coffee shops, the town library, parks, and scenic riverside trails, making it easy to enjoy the best of small-town living without getting in the car. Quality construction, thoughtful layouts, and a desirable location make Our Town Village one of the best values for new construction in southern New Hampshire. Do not miss your opportunity to own a brand-new home in this vibrant and unique community.

Condo Name: Our Town Village

Room Information:
Total Rooms: 6
Total Baths: 2
Flooring: Carpet | Vinyl Plank
Full Baths: 1
1/2 Baths: 1
Bedrooms: 2

Construction Information:
Year Built: 2026
Type: Wood Frame | Vinyl Siding

Building Info
Finished Sq.Ft.: 1595
Above Grade Sq.Ft.: 1115
Below Grade Sq.Ft.: 0
Apx Below Grade Unfinished Sq.Ft.: 0

Exterior Info
Style: Townhouse
Roof: Asphalt Shingle

Utilities
Electric: 200+ Amp Service | Circuit Breaker(s)
Water: Public
Sewer: Public

Land Description:
Landscaped
Zoned: Res
Surveyed: Yes
Flood Zone: No
Seasonal: No
Driveway: Paved

Additional Information
Docs Available : Association Docs | Deed | Property Disclosure | Tax Map
Block - 000
Taxes $0
Assesed Value Not Reported
Schools
School District: Contoocook Valley SD SAU #1
Elementary School: Peterborough Elem School
Middle School: South Meadow School
High School: Contoocook Valley Regional Hig

© 2000-2026 Big Green Real Estate
NEREN Logo
5 Old Nugget Alley, Hanover, NH 03755 603-643-3942
CONTACT STAR

Big Green Real Estate is not affiliated with nor officially sanctioned by Dartmouth College

Copyright © 2026 PrimeMLS, Inc. All rights reserved. This information is deemed reliable, but not guaranteed. The data relating to real estate displayed on this display comes in part from the IDX Program of PrimeMLS. The information being provided is for consumers’ personal, non-commercial use and may not be used for any purpose other than to identify prospective properties consumers may be interested in purchasing. Data last updated April 19th, 2026

PLEASE NOTE: Both New Hampshire and Vermont law require brokers and agents to disclose at the “time of first business meeting, prior to any discussion of confidential information”, in New Hampshire’s case, and “first reasonable opportunity”, in Vermont’s case, the nature of the relationships brokers have or may have with customers and clients. Each state requires that a disclosure form be presented to consumers for their review and acknowledgment at the appropriate time. These forms can be accessed at the following websites and you are encouraged to read these documents.Big Green Real Estate chooses as a business model to represent both buyers and sellers; please do not assume, without any contractual agreement otherwise, that Big Green Real Estate at this time represents your interests as an agent.
VT: VERMONT REAL ESTATE COMMISSION MANDATORY CONSUMER DISCLOSURE FORM
NH: NEW HAMPSHIRE REAL ESTATE COMMISSION BROKERAGE RELATIONSHIP DISCLOSURE FORM