List Price: $495,000 | $317 per sq.ft. | 3 Bedroom | 2 Bathroom | 2 Story Single Family Home
Price Change! Reduced by $44,000 down 9% on October 9th 2025

Date Listed Thursday Jul 31, 2025 | MLS# 5054387


Address: 22 Gilman Street Nashua NH
Listed by Maha Krishnakumar East Key Realty Phone: 978-430-6552
Description:
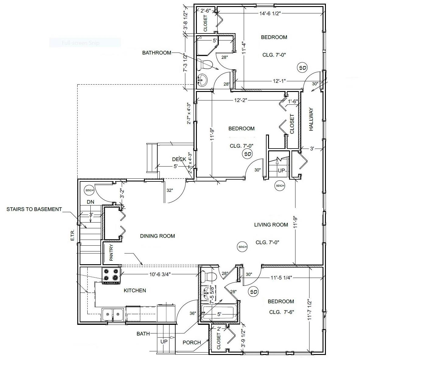
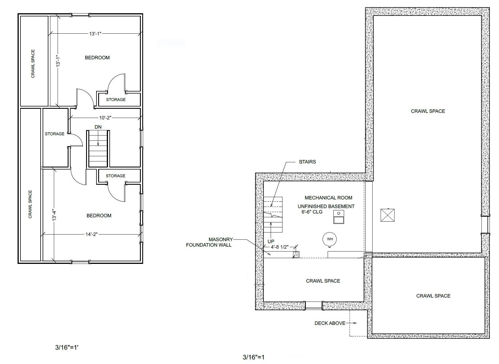
OPEN HOUSE this Saturday 10/11 between 11:30am thro' 1pm - Here's an opportunity to own a beautifully remodeled open floor concept 3brs/ 2baths Single family house in Nashua. The main level offers a big living room, a modern new kitchen with new shaker-style cabinets, quartz countertop, eat-in kitchen, dining area, pantry, new stainless steel appliances incl microwave, a master suite with a tiled full bath, 2 good sized bedrooms, another tiled bath with stand-up shower & laundry hookup. Upper level has two more rooms. Other features include one car detached garage, off-street 6+ car parking, hardwood flooring throughout / new hardwood floors on 1st floor, fenced backyard/ covered patio, upgraded electric wiring/panels, new WH, new roof on Shingle side etc. Easy access to schools, restaurants, shopping, highways etc. Disclosures: All measurements are approximate; Buyer(s)/Buyer agent responsible for all due diligence; Seller never lived in the property; Seller is related to the agent; Certificate of occupancy is for 3brs/2bath & as per the attached CO, 2 rooms in 2nd fl are to be used for storage only; Currently assessed as 3br/1bath. For 2026, it will be assessed as 3br/2baths.

Room Information:
Total Rooms: 8
Total Baths: 2
Flooring: Ceramic Tile | Hardwood
Full Baths: 2
Bedrooms: 3
Basement: Dirt

Construction Information:
Year Built: 1880
Type: Wood Frame

Building Info
Finished Sq.Ft.: 2016
Above Grade Sq.Ft.: 1560
Below Grade Sq.Ft.: 0
Apx Below Grade Unfinished Sq.Ft.: 456

Exterior Info
Style: Cape
Roof: Asphalt Shingle | Membrane

Utilities
Electric: 100 Amp Service | 110 Volt | Circuit Breaker(s)
Water: Public Water On-Site
Sewer: Public

Land Description:
Landscaped | Level | Near Shopping | Near School(s)
Lot size: 0.25 acres
Zoned: RB
Surveyed: Unk
Flood Zone: Unknown
Seasonal: No
Road Frontage: 50
Driveway: Paved

Additional Information
Block - 0
Taxes $6,209
Assesed Value Not Reported
Schools

© 2000-2025 Big Green Real Estate
NEREN Logo
5 Old Nugget Alley, Hanover, NH 03755 603-643-3942
CONTACT STAR

Big Green Real Estate is not affiliated with nor officially sanctioned by Dartmouth College

Copyright © 2025 PrimeMLS, Inc. All rights reserved. This information is deemed reliable, but not guaranteed. The data relating to real estate displayed on this display comes in part from the IDX Program of PrimeMLS. The information being provided is for consumers’ personal, non-commercial use and may not be used for any purpose other than to identify prospective properties consumers may be interested in purchasing. Data last updated October 12th, 2025

PLEASE NOTE: Both New Hampshire and Vermont law require brokers and agents to disclose at the “time of first business meeting, prior to any discussion of confidential information”, in New Hampshire’s case, and “first reasonable opportunity”, in Vermont’s case, the nature of the relationships brokers have or may have with customers and clients. Each state requires that a disclosure form be presented to consumers for their review and acknowledgment at the appropriate time. These forms can be accessed at the following websites and you are encouraged to read these documents.Big Green Real Estate chooses as a business model to represent both buyers and sellers; please do not assume, without any contractual agreement otherwise, that Big Green Real Estate at this time represents your interests as an agent.
VT: VERMONT REAL ESTATE COMMISSION MANDATORY CONSUMER DISCLOSURE FORM
NH: NEW HAMPSHIRE REAL ESTATE COMMISSION BROKERAGE RELATIONSHIP DISCLOSURE FORM