List Price: $599,000 | $239 per sq.ft. | 3 Bedroom | 3 Bathroom | 2 Story Single Family Home
Price Change! Reduced by $21,000 down 4% on August 21st 2025

Under Contract Date Listed Wednesday Jul 30, 2025 | MLS# 5054132


Address: 12 Ayer Street Nashua NH
Listed by Briana Burke BHGRE Masiello Nashua
Description:
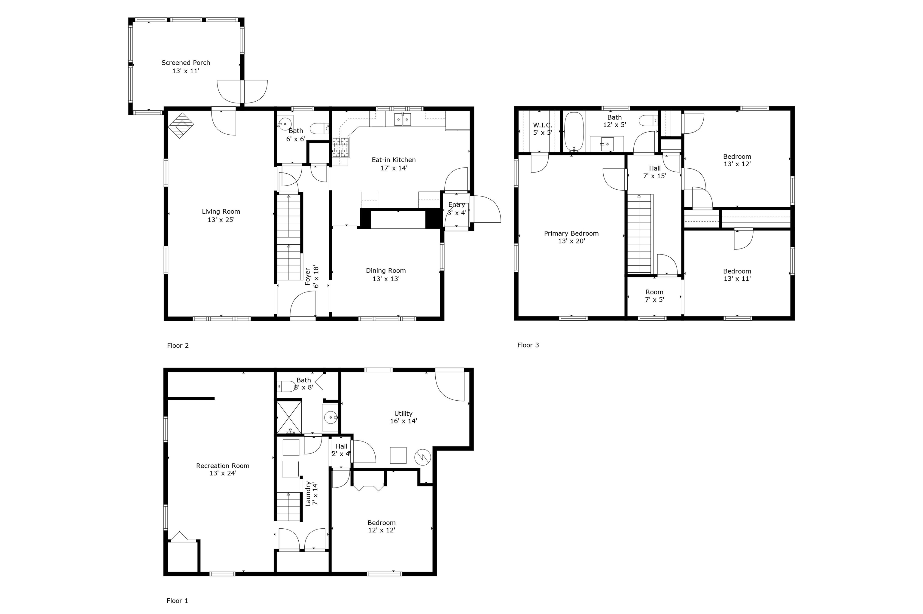
Timeless Charm Meets Modern Comfort in Nashua's North End. This beautifully updated Colonial offers the perfect blend of character and convenience in one of the city's most loved neighborhoods. Park in the attached garage and step in to find gleaming hardwood floors and natural light that flows throughout. The renovated kitchen features granite counters, stainless steel appliances including a gas range, and built-in seating - perfect for morning coffee or weekend brunch. The formal dining room impresses with original built-ins and updated lighting for effortless entertaining, while the expansive front-to-back living room offers a cozy pellet stove and custom shades for a polished finish. Love a bonus space? The refreshed sunroom overlooks the fully fenced backyard - your new favorite spot to unwind. Upstairs, the oversized primary bedroom includes a walk-in closet and room to relax, while the remodeled full bath brings spa vibes with custom tile and a rainfall shower. Two additional bedrooms with ample storage complete the second floor. Need more space? The finished basement includes a family room, ¾ bath, and bonus room - perfect for a home gym, office, or guest space. A brick patio, manicured lawn, and irrigation system make outdoor living easy. With central A/C, updated windows, new water heater, and fresh paint, this home is truly move-in ready. Just a short stroll to Greeley Park, downtown, and Holman Stadium. Join our Open House Sunday 9/7 11 AM - 1 PM!

Negotiable : Dryer | Washer

Room Information:
Total Rooms: 8
Total Baths: 3
Flooring: Carpet | Hardwood | Tile
Full Baths: 2
1/2 Baths: 1
Bedrooms: 3
Kitchen size: 17x14'
Livingroom size: 13x25'
Bedroom 1: 13x11'
Bedroom 2: 13x20'
Bedroom 3: 12x5'
Bedroom 4: 13x24'
Den size: 12x12'
Family/Rec Room: 6x6'
Basement: Finished | Partially Finished | Storage Space

Construction Information:
Year Built: 1940
Type: Vinyl Siding

Building Info
Finished Sq.Ft.: 2950
Above Grade Sq.Ft.: 2066
Below Grade Sq.Ft.: 442
Apx Below Grade Unfinished Sq.Ft.: 442

Exterior Info
Style: Colonial
Exterior Color Gray
Roof: Asphalt Shingle

Utilities
Electric: 200+ Amp Service | Circuit Breaker(s)
Water: Public
Sewer: Public

Land Description:
Level | Near Shopping | Neighborhood
Lot size: 0.13 acres
Zoned: RB
Surveyed: Unk
Flood Zone: No
Seasonal: No
Road Frontage: 60
Driveway: Paved

Additional Information
Easement - Unknown
Block - 0
Taxes $8,723
Assesed Value Not Reported
Schools
School District: Nashua School District
Elementary School: Mt. Pleasant Elementary School
Middle School: Pennichuck Junior High School
High School: Nashua High School North

© 2000-2025 Big Green Real Estate
NEREN Logo
5 Old Nugget Alley, Hanover, NH 03755 603-643-3942
CONTACT STAR

Big Green Real Estate is not affiliated with nor officially sanctioned by Dartmouth College

Copyright © 2025 PrimeMLS, Inc. All rights reserved. This information is deemed reliable, but not guaranteed. The data relating to real estate displayed on this display comes in part from the IDX Program of PrimeMLS. The information being provided is for consumers’ personal, non-commercial use and may not be used for any purpose other than to identify prospective properties consumers may be interested in purchasing. Data last updated October 12th, 2025

PLEASE NOTE: Both New Hampshire and Vermont law require brokers and agents to disclose at the “time of first business meeting, prior to any discussion of confidential information”, in New Hampshire’s case, and “first reasonable opportunity”, in Vermont’s case, the nature of the relationships brokers have or may have with customers and clients. Each state requires that a disclosure form be presented to consumers for their review and acknowledgment at the appropriate time. These forms can be accessed at the following websites and you are encouraged to read these documents.Big Green Real Estate chooses as a business model to represent both buyers and sellers; please do not assume, without any contractual agreement otherwise, that Big Green Real Estate at this time represents your interests as an agent.
VT: VERMONT REAL ESTATE COMMISSION MANDATORY CONSUMER DISCLOSURE FORM
NH: NEW HAMPSHIRE REAL ESTATE COMMISSION BROKERAGE RELATIONSHIP DISCLOSURE FORM