List Price: $465,000 | $361 per sq.ft. | 2 Bedroom | 1 Bathroom | 2 Story Single Family Home
Under Contract Date Listed Tuesday May 6, 2025 | MLS# 5039661


Address: 11 Jennifer's Path Moultonborough NH
Listed by Jean Monahan BHHS Verani Londonderry Cell: 603-289-7829
Description:
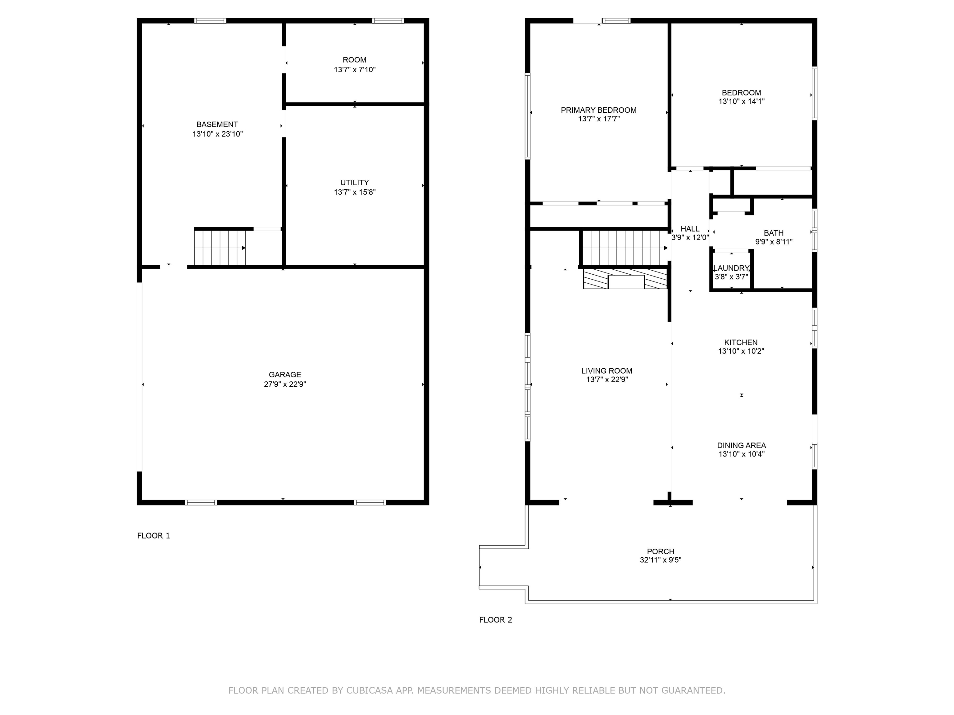
Set on 4.6 acres, tucked away in the serene woods of the Lakes Region, this inviting 2-bedroom, 1-bath open-concept ranch offers the perfect mix of rustic charm and modern convenience. This home features a stunning floor-to-ceiling stone fireplace, creating a cozy centerpiece for the spacious living area. Enjoy seamless indoor-outdoor living with a layout that flows effortlessly, ideal for entertaining or relaxing after a day on the lake. The two-car garage provides ample storage, while the lower level offers exciting potential with a space that is plumbed for a full bath, kitchenette, and den--perfect for expanding your living space or hosting guests. With summer just around the corner, you'll love the unbeatable location with easy access to nearby lakes, including beach access to iconic Lake Winnipesaukee. Whether you're seeking a year-round home, a seasonal getaway, or an investment opportunity, this property checks all the boxes.

Room Information:
Total Rooms: 5
Total Baths: 1
Flooring: Carpet | Ceramic Tile | Hardwood
Full Baths: 1
Bedrooms: 2
Kitchen size: 14x10
Livingroom size: 14x23
Bedroom 1: 14x8
Family/Rec Room: 14x18
Basement: Partially Finished

Construction Information:
Year Built: 1980
Type: Wood Siding

Building Info
Finished Sq.Ft.: 1932
Above Grade Sq.Ft.: 1288
Below Grade Sq.Ft.: 0
Apx Below Grade Unfinished Sq.Ft.: 644
Foundation size 46x28.

Exterior Info
Style: Ranch
Exterior Color gray
Roof: Asphalt Shingle

Utilities
Electric: Circuit Breaker(s)
Water: Private
Sewer: Private

Land Description:
Country Setting | Wooded | Rural
Lot size: 4.6 acres
Zoned: res
Surveyed: Unk
Flood Zone: No
Seasonal: No
Road Frontage: 100
Driveway: Dirt

Additional Information
Docs Available : Property Disclosure
Block - 027
Taxes $1,780
Assesed Value Not Reported
Schools

© 2000-2025 Big Green Real Estate
NEREN Logo
5 Old Nugget Alley, Hanover, NH 03755 603-643-3942
CONTACT STAR

Big Green Real Estate is not affiliated with nor officially sanctioned by Dartmouth College

Copyright © 2025 PrimeMLS, Inc. All rights reserved. This information is deemed reliable, but not guaranteed. The data relating to real estate displayed on this display comes in part from the IDX Program of PrimeMLS. The information being provided is for consumers’ personal, non-commercial use and may not be used for any purpose other than to identify prospective properties consumers may be interested in purchasing. Data last updated November 3rd, 2025

PLEASE NOTE: Both New Hampshire and Vermont law require brokers and agents to disclose at the “time of first business meeting, prior to any discussion of confidential information”, in New Hampshire’s case, and “first reasonable opportunity”, in Vermont’s case, the nature of the relationships brokers have or may have with customers and clients. Each state requires that a disclosure form be presented to consumers for their review and acknowledgment at the appropriate time. These forms can be accessed at the following websites and you are encouraged to read these documents.Big Green Real Estate chooses as a business model to represent both buyers and sellers; please do not assume, without any contractual agreement otherwise, that Big Green Real Estate at this time represents your interests as an agent.
VT: VERMONT REAL ESTATE COMMISSION MANDATORY CONSUMER DISCLOSURE FORM
NH: NEW HAMPSHIRE REAL ESTATE COMMISSION BROKERAGE RELATIONSHIP DISCLOSURE FORM