List Price: $426,300 | $297 per sq.ft. | 2 Bedroom | 2 Bathroom | Condo Stonecrop meadows subdivision,   
Under Contract Date Listed Saturday Sep 6, 2025 | MLS# 5060105


Address: 14 Brush Lane Middlebury VT
Listed by Sarah Peluso IPJ Real Estate Cell: 802-349-8695
Description:
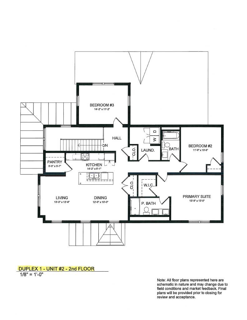
Special pricing for qualified buyers! Inquire with your agent to see if you qualify. Welcome to Stonecrop Meadows, Middlebury's newest neighborhood! Located just 1/2 mile from downtown Middlebury, where restaurants, shopping, theater and more will be at your fingertips. This two bedroom, single level unit is on the first floor, and will be ready for occupancy in January of 2026. To be built with energy efficiency at the forefront, each unit will be heated and cooled with mini split technology, with a whole house ventilation system. Pull into your private garage, and then into your entry to the one level unit! You will find an open concept living area, with large windows and a generous kitchen featuring an island, with seating, pantry and energy star appliances. The kitchen transitions seamlessly into spacious dining and living areas making entertaining a breeze. A front porch is off the living space- a great spot for morning coffee! Down the hall you will find the primary suite with walk in closet and 3/4 bath. An additional bedroom and a full bath provides room for guests or office space. Laundry is conveniently located in the hall, to complete the living space. Don't forget the basement below that will provide ample storage as needed! Future community amenities will include green space, community garden, access to trails and more. Inquire for more details!


Room Information:
Total Rooms: 5
Total Baths: 2
Flooring: Carpet | Vinyl Plank
Full Baths: 1
3/4 Baths: 1
Bedrooms: 2
Kitchen size: 14'2" x 9'1"
Livingroom size: 12'" x 12'8"
Family/Rec Room: 13'9" x 13'
Basement: Concrete Floor | Insulated | Interior Stairs | Storage Space

Construction Information:
Year Built: 2025
Type: Vinyl Siding | Wood Siding

Building Info
Finished Sq.Ft.: 2110
Above Grade Sq.Ft.: 1434
Below Grade Sq.Ft.: 0
Apx Below Grade Unfinished Sq.Ft.: 676

Exterior Info
Style: Duplex | End Unit | Flat | Ground Floor | Single Level
Roof: Architectural Shingle | Metal | Standing Seam

Utilities
Electric: 200+ Amp Service | Circuit Breaker(s)
Water: Public
Sewer: Public

Land Description:
Landscaped | Trail/Near Trail | In Town | Near Paths | Neighborhood | Near Public Transportatn
Zoned: Residential-20
Surveyed: Yes
Flood Zone: No
Seasonal: No
Road Frontage: 55
Driveway: Paved

Additional Information
Docs Available : Association Docs | Covenants | Other | Plot Plan
Taxes $0
Assesed Value Not Reported
Schools
School District: Addison Central
Elementary School: Mary Hogan School
Middle School: Middlebury Union Middle #3
High School: Middlebury Senior UHSD #3

© 2000-2025 Big Green Real Estate
NEREN Logo
5 Old Nugget Alley, Hanover, NH 03755 603-643-3942
CONTACT STAR

Big Green Real Estate is not affiliated with nor officially sanctioned by Dartmouth College

Copyright © 2025 PrimeMLS, Inc. All rights reserved. This information is deemed reliable, but not guaranteed. The data relating to real estate displayed on this display comes in part from the IDX Program of PrimeMLS. The information being provided is for consumers’ personal, non-commercial use and may not be used for any purpose other than to identify prospective properties consumers may be interested in purchasing. Data last updated October 12th, 2025

PLEASE NOTE: Both New Hampshire and Vermont law require brokers and agents to disclose at the “time of first business meeting, prior to any discussion of confidential information”, in New Hampshire’s case, and “first reasonable opportunity”, in Vermont’s case, the nature of the relationships brokers have or may have with customers and clients. Each state requires that a disclosure form be presented to consumers for their review and acknowledgment at the appropriate time. These forms can be accessed at the following websites and you are encouraged to read these documents.Big Green Real Estate chooses as a business model to represent both buyers and sellers; please do not assume, without any contractual agreement otherwise, that Big Green Real Estate at this time represents your interests as an agent.
VT: VERMONT REAL ESTATE COMMISSION MANDATORY CONSUMER DISCLOSURE FORM
NH: NEW HAMPSHIRE REAL ESTATE COMMISSION BROKERAGE RELATIONSHIP DISCLOSURE FORM