List Price: $1,250,000 | $299 per sq.ft. | 4 Bedroom | 4 Bathroom | 3 Story Single Family Home
Date Listed Monday Sep 8, 2025 | MLS# 5060290


Address: 166 Woods West Road Ludlow VT
Listed by Jessica Citera Cummings & Co
Description:
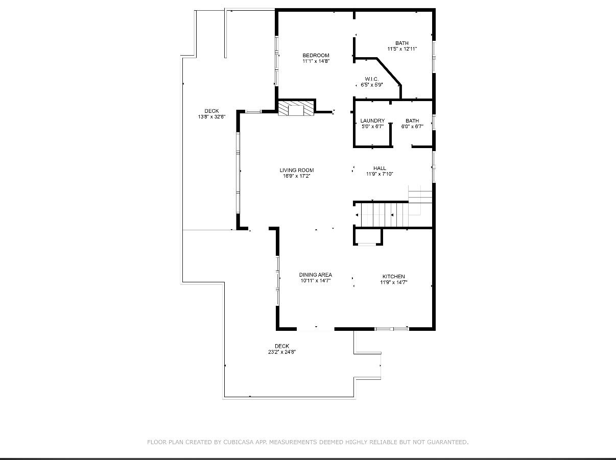
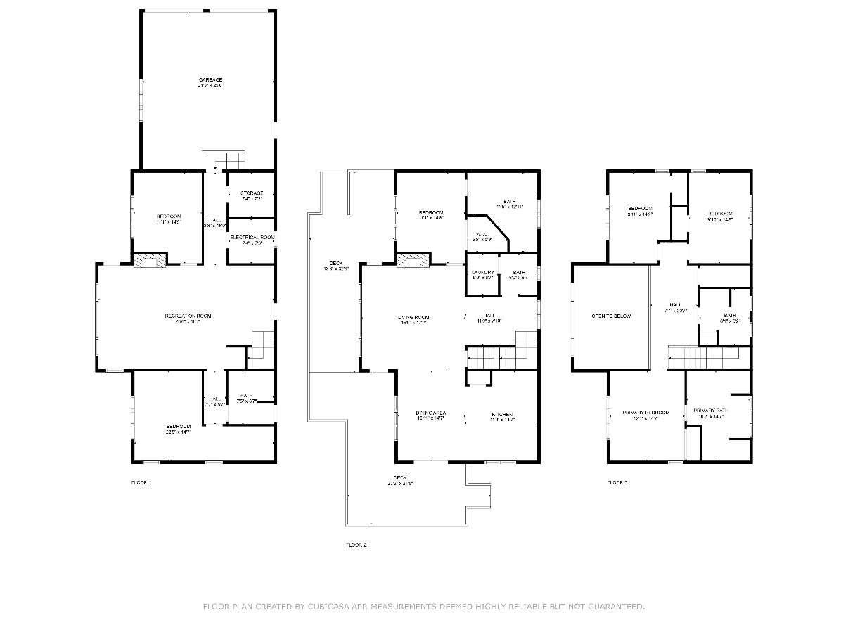
Perched high on the hillside, this home offers expansive views of the lakes and mountains. Located at the end of a quiet road in the Farm Ridge Community just under 5 miles from the base of Okemo Mountain and 4 miles to Plymouth State Park for boating and swimming in the warmer months. The maintained trails on it's 16.15 acres makes it easy to explore, while the deck is a perfect place to relax, soak in the hot tub while enjoying views of Lake Rescue. The interior of this hillside retreat boasts an expansive three-level floor plan designed for both comfort and entertaining. Large windows throughout capturing the changes of the season, gorgeous walnut flooring, a stunning great room with soaring ceilings and two gas fireplaces. This home offers plenty of room with four bedrooms--including two primary suites--plus two versatile bonus rooms that can serve as additional sleeping space or a home office. The attached oversized garage provides ample storage for all your gear, while the detached heated garage is perfect for the bigger toys - snowmobiles, boats, ATV's.

Room Information:
Total Rooms: 10
Total Baths: 4
Full Baths: 3
1/2 Baths: 1
Bedrooms: 4
Kitchen size: 17 x 17
Livingroom size: 12 x 14
Bedroom 1: 11 x 13 Bath
Bedroom 2: 12 x 15 Bedroom
Bedroom 3: 10 x 15
Bedroom 4: 10 x 15
Den size: 8 x 9
Family/Rec Room: 6 x 7

Construction Information:
Year Built: 2008
Type: Wood Frame | Clapboard Exterior

Building Info
Finished Sq.Ft.: 5004
Above Grade Sq.Ft.: 4177
Below Grade Sq.Ft.: 0
Apx Below Grade Unfinished Sq.Ft.: 0

Exterior Info
Style: Contemporary
Exterior Color Brown
Roof: Asphalt Shingle

Utilities
Electric: 220 Plug
Water: Drilled Well
Sewer: Septic

Land Description:
Hilly | Lake View | Mountain View | Sloping | Steep | View | Walking Trails | Wooded | Mountain | Near Skiing
Lot size: 16.15 acres
Zoned: Residential
Surveyed: Unk
Flood Zone: No
Seasonal: No
Road Frontage: 453
Driveway: Crushed Stone | Dirt

Additional Information
Easement - Yes
Taxes $13,539
Assesed Value Not Reported
Schools
School District: Ludlow School District
Elementary School: Ludlow Elementary School
Middle School: Choice
High School: Choice

© 2000-2025 Big Green Real Estate
NEREN Logo
5 Old Nugget Alley, Hanover, NH 03755 603-643-3942
CONTACT STAR

Big Green Real Estate is not affiliated with nor officially sanctioned by Dartmouth College

Copyright © 2025 PrimeMLS, Inc. All rights reserved. This information is deemed reliable, but not guaranteed. The data relating to real estate displayed on this display comes in part from the IDX Program of PrimeMLS. The information being provided is for consumers’ personal, non-commercial use and may not be used for any purpose other than to identify prospective properties consumers may be interested in purchasing. Data last updated October 7th, 2025

PLEASE NOTE: Both New Hampshire and Vermont law require brokers and agents to disclose at the “time of first business meeting, prior to any discussion of confidential information”, in New Hampshire’s case, and “first reasonable opportunity”, in Vermont’s case, the nature of the relationships brokers have or may have with customers and clients. Each state requires that a disclosure form be presented to consumers for their review and acknowledgment at the appropriate time. These forms can be accessed at the following websites and you are encouraged to read these documents.Big Green Real Estate chooses as a business model to represent both buyers and sellers; please do not assume, without any contractual agreement otherwise, that Big Green Real Estate at this time represents your interests as an agent.
VT: VERMONT REAL ESTATE COMMISSION MANDATORY CONSUMER DISCLOSURE FORM
NH: NEW HAMPSHIRE REAL ESTATE COMMISSION BROKERAGE RELATIONSHIP DISCLOSURE FORM