List Price: $959,900 | $398 per sq.ft. | 3 Bedroom | 3 Bathroom | Condo
Date Listed Wednesday Mar 11, 2026 | MLS# 5078989


Address: 7A Hurlin Lane Jackson NH
Listed by Kevin Killourie Badger Peabody & Smith Realty Cell: 603-986-5551
Description:
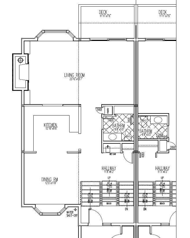
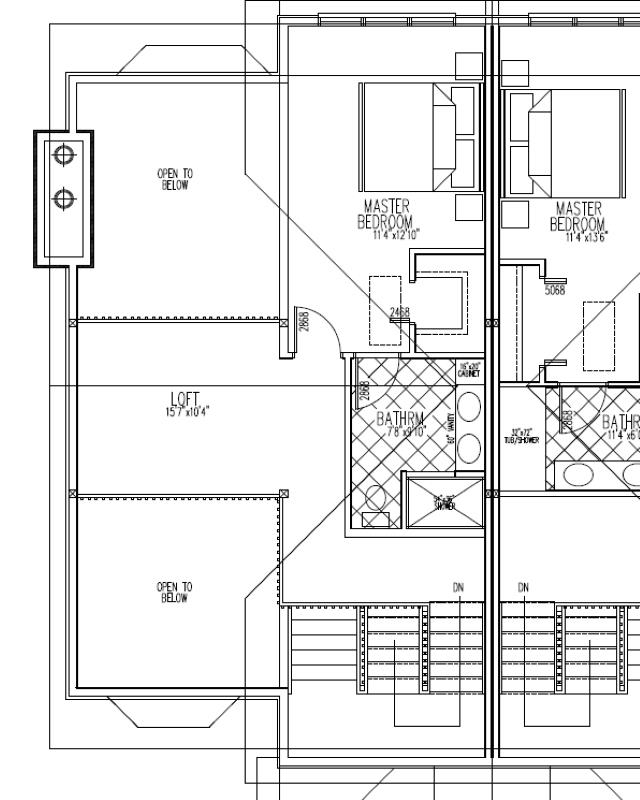
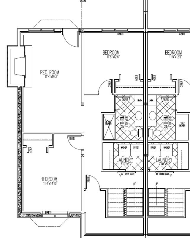
Brand new with a view Wentworth Resort Townhouse rising on the former site of building Five, just steps from the 13th fairway at Wentworth Golf Club. Quiet, South facing location within the association. The 3 bedroom, 3 level 2400+/- SF end unit will include a kitchen, dining, and living area on the main level, a primary suite and loft above, plus two bedrooms and a family room below. Still time to customizer to your personal taste. Tee off from your doorstep in Summer months or glide across the fairway on cross-country skis in the Winter. With Jackson Village's restaurants, shops, and endless seasonal adventures just a short distance away.


Room Information:
Total Rooms: 7
Total Baths: 3
Full Baths: 1
1/2 Baths: 1
3/4 Baths: 1
Bedrooms: 3
Basement: Finished | Full

Construction Information:
Year Built: 2026
Type: Wood Frame | Clapboard Exterior | Shingle Siding | Wood Siding

Building Info
Finished Sq.Ft.: 2412
Above Grade Sq.Ft.: 1464
Below Grade Sq.Ft.: 948
Apx Below Grade Unfinished Sq.Ft.: 0

Exterior Info
Style: Townhouse
Exterior Color Cream
Roof: Asphalt Shingle

Utilities
Electric: 200+ Amp Service | Circuit Breaker(s)
Water: Public
Sewer: 1500+ Gallon | Leach Field | Septic Shared

Land Description:
Condo Development | Landscaped | Mountain View | Abuts Golf Course | Near Skiing
Zoned: 04-Rural Residential
Surveyed: Yes
SurveyedBy: White Mountain
Flood Zone: No
Seasonal: No
Driveway: Common/Shared

Additional Information
Block - 000010
Taxes $1,937
Assesed Value Not Reported
Schools
School District: SAU #9
Elementary School: Jackson Grammar School
Middle School: Josiah Bartlett School
High School: A. Crosby Kennett Sr. High

© 2000-2026 Big Green Real Estate
NEREN Logo
5 Old Nugget Alley, Hanover, NH 03755 603-643-3942
CONTACT STAR

Big Green Real Estate is not affiliated with nor officially sanctioned by Dartmouth College

Copyright © 2026 PrimeMLS, Inc. All rights reserved. This information is deemed reliable, but not guaranteed. The data relating to real estate displayed on this display comes in part from the IDX Program of PrimeMLS. The information being provided is for consumers’ personal, non-commercial use and may not be used for any purpose other than to identify prospective properties consumers may be interested in purchasing. Data last updated April 25th, 2026

PLEASE NOTE: Both New Hampshire and Vermont law require brokers and agents to disclose at the “time of first business meeting, prior to any discussion of confidential information”, in New Hampshire’s case, and “first reasonable opportunity”, in Vermont’s case, the nature of the relationships brokers have or may have with customers and clients. Each state requires that a disclosure form be presented to consumers for their review and acknowledgment at the appropriate time. These forms can be accessed at the following websites and you are encouraged to read these documents.Big Green Real Estate chooses as a business model to represent both buyers and sellers; please do not assume, without any contractual agreement otherwise, that Big Green Real Estate at this time represents your interests as an agent.
VT: VERMONT REAL ESTATE COMMISSION MANDATORY CONSUMER DISCLOSURE FORM
NH: NEW HAMPSHIRE REAL ESTATE COMMISSION BROKERAGE RELATIONSHIP DISCLOSURE FORM