List Price: $1,950,000 | $587 per sq.ft. | 3 Bedroom | 3 Bathroom | 2 Story Single Family Home on Merrimack River
Date Listed Tuesday Oct 7, 2025 | MLS# 5064742


Address: 12 Leclair Drive Hudson NH
Listed by Maurice Robichaud Arris Realty
Description:
Private Merrimack Riverfront Estate 600' Frontage, 12.4 Acres, Unlimited Potential 12 Leclair Street, Hudson, New Hampshire 52 Minutes to Boston, 22-24 Minutes to Manchester-Boston Regional Airport Discover a rare opportunity to own over 12.4 acres with 600 feet of frontage on the scenic Merrimack River, complete with a brook meandering through the property. This 3-bedroom, 3,320?sq?ft single-family home offers spacious living and stunning water views. While the residence is comfortable and ready for updates, the true allure lies in the land's immense potential. With open fields and direct river access, this property is a blank canvas for an equestrian estate, a private riverfront retreat, or a family compound. Imagine your custom barn, fenced paddocks, riding arena, and acres of pasture. Additionally, the property comes with deeded dock rights and a permit for a private boat dock (not yet installed), perfect for boating, fishing, or relaxing on the river. The property also offers the potential for subdivision into six additional building lots, subject to town approval, appealing to buyers seeking privacy, a development opportunity, or a long-term investment. Whether you're looking for a serene year-round residence, a weekend country escape, or a property with future development potential, this estate combines space, privacy, and natural beauty in a prime location.

Room Information:
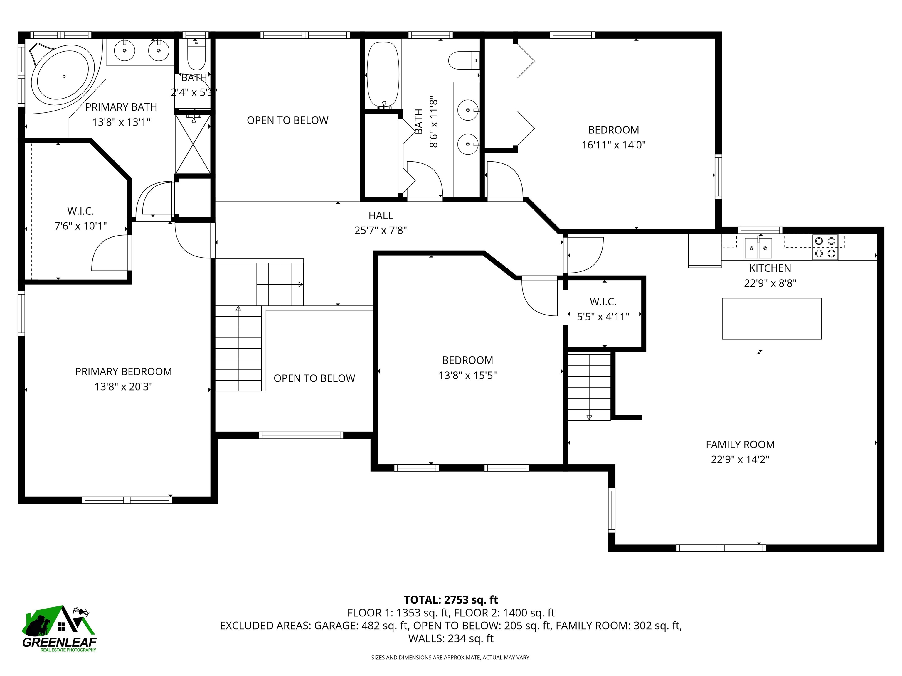
Total Rooms: 8
Total Baths: 3
Full Baths: 2
1/2 Baths: 1
Bedrooms: 3
Kitchen size: 22'10 x 14'1
Livingroom size: 15'9 x 19'3
Bedroom 1: 16'11 x 14'0
Bedroom 2: 13'8 x 15'5
Family/Rec Room: 13'6 x 14'10
Basement: Unfinished

Construction Information:
Year Built: 1994
Type: Wood Frame

Building Info
Finished Sq.Ft.: 3320
Above Grade Sq.Ft.: 3320
Below Grade Sq.Ft.: 0
Apx Below Grade Unfinished Sq.Ft.: 0

Exterior Info
Style: Colonial
Roof: Asphalt Shingle

Utilities
Electric: Circuit Breaker(s)
Water: Private
Sewer: Private

Land Description:
River | River Frontage | Waterfront
Lot size: 12.44 acres
Zoned: R2
Surveyed: Unk
Flood Zone: Unknown
Seasonal: No
Driveway: Gravel

Additional Information
Easement - Unknown
Block - 011
Taxes $11,337
Assesed Value Not Reported
Schools

© 2000-2025 Big Green Real Estate
NEREN Logo
5 Old Nugget Alley, Hanover, NH 03755 603-643-3942
CONTACT STAR

Big Green Real Estate is not affiliated with nor officially sanctioned by Dartmouth College

Copyright © 2025 PrimeMLS, Inc. All rights reserved. This information is deemed reliable, but not guaranteed. The data relating to real estate displayed on this display comes in part from the IDX Program of PrimeMLS. The information being provided is for consumers’ personal, non-commercial use and may not be used for any purpose other than to identify prospective properties consumers may be interested in purchasing. Data last updated October 12th, 2025

PLEASE NOTE: Both New Hampshire and Vermont law require brokers and agents to disclose at the “time of first business meeting, prior to any discussion of confidential information”, in New Hampshire’s case, and “first reasonable opportunity”, in Vermont’s case, the nature of the relationships brokers have or may have with customers and clients. Each state requires that a disclosure form be presented to consumers for their review and acknowledgment at the appropriate time. These forms can be accessed at the following websites and you are encouraged to read these documents.Big Green Real Estate chooses as a business model to represent both buyers and sellers; please do not assume, without any contractual agreement otherwise, that Big Green Real Estate at this time represents your interests as an agent.
VT: VERMONT REAL ESTATE COMMISSION MANDATORY CONSUMER DISCLOSURE FORM
NH: NEW HAMPSHIRE REAL ESTATE COMMISSION BROKERAGE RELATIONSHIP DISCLOSURE FORM