List Price: $499,900 | $210 per sq.ft. | 4 Bedroom | 2 Bathroom | 2 Story Single Family Home
Price Change! Reduced by $50,000 down 10% on September 19th 2025

Under Contract Date Listed Friday Sep 5, 2025 | MLS# 5059854


Address: 94 Brown Hill Road Bow NH
Listed by April Dunn April Dunn & Associates LLC
Description:
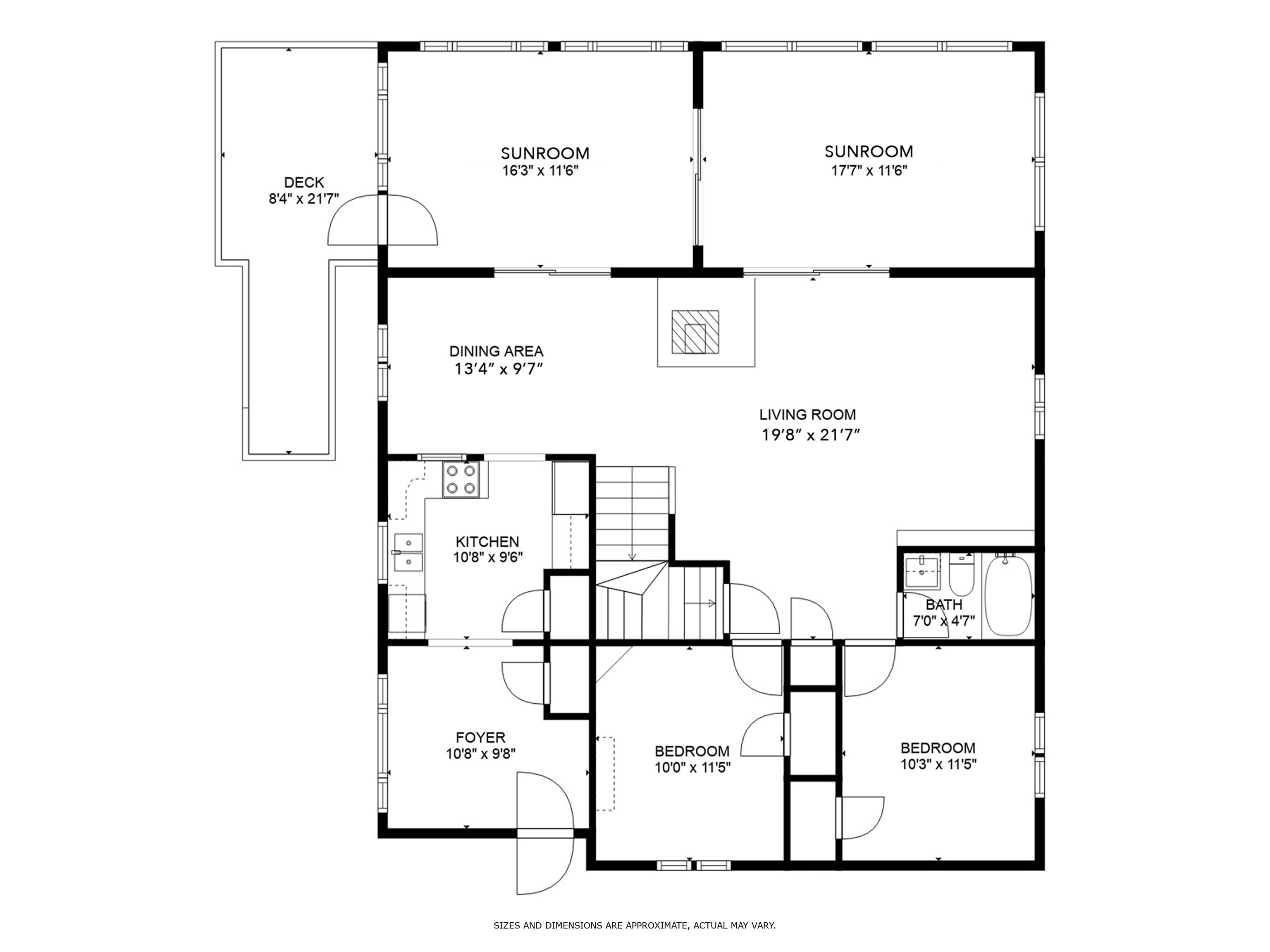
Welcome to 94 Brown Hill Rd- a picturesque road known for its views and sunsets! A unique opportunity, to get into Bow at an affordable price and be able to build equity! Whether you are looking to supplement the cost of your mortgage from rental income of an additional apartment or have extended family- this is the perfect property for multi generational living! The main home is a bright and open Contemporary, offering 3-4 Bdrms 2 ba, second floor laundry, cathedral ceilings, woodstove in the living room, 2 heated, four season sun rooms, partially finished ll w/ det 3 car oversized garage and apartment above- all set on over 5 private acres! Bow, highly regarded for it's commitment to education, sense of community, conversation, and easy commutability with easy access to both I89 & I93. Freshly cleaned and ready for immediate occupancy!

Room Information:
Total Rooms: 8
Total Baths: 2
Flooring: Carpet | Hardwood | Tile
Full Baths: 2
Bedrooms: 4
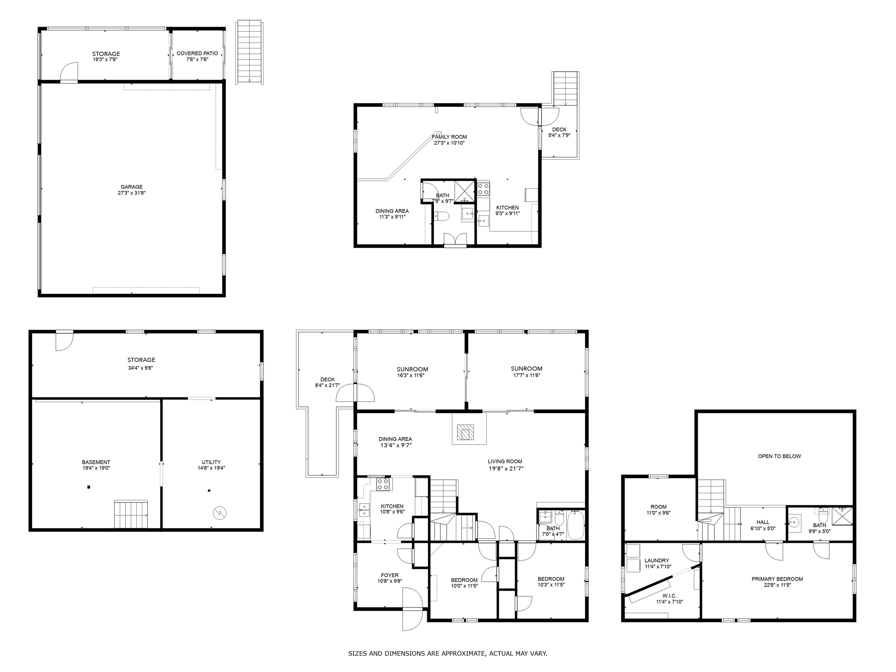
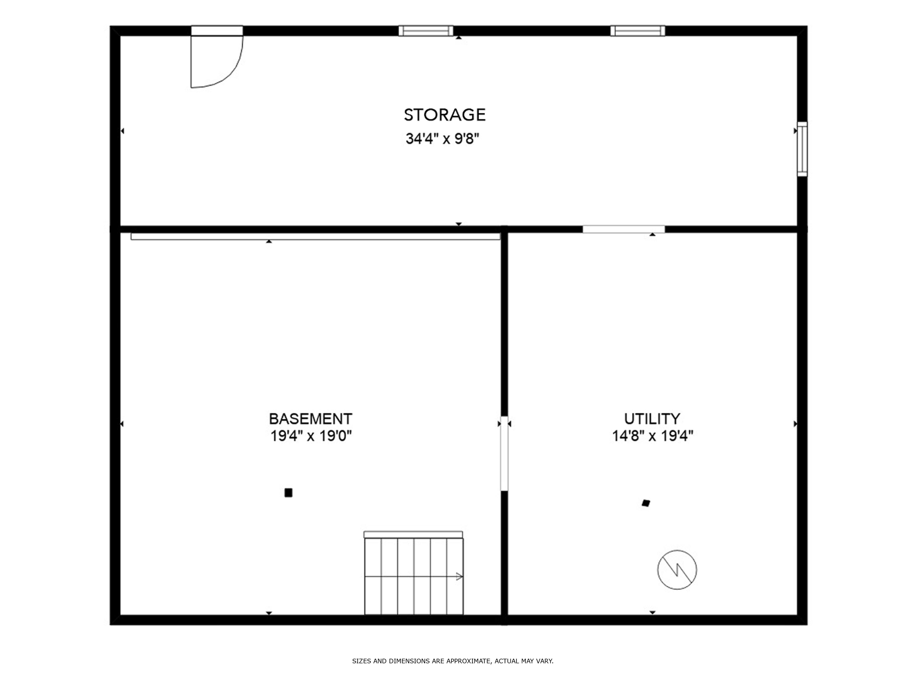
Basement: Full | Unfinished | Walkout

Construction Information:
Year Built: 1967
Type: Wood Exterior

Building Info
Finished Sq.Ft.: 3142
Above Grade Sq.Ft.: 2082
Below Grade Sq.Ft.: 300
Apx Below Grade Unfinished Sq.Ft.: 760
Foundation size 42x40.

Exterior Info
Style: Contemporary | Walkout Lower Level
Exterior Color Gray
Roof: Asphalt Shingle

Utilities
Electric: Circuit Breaker(s)
Water: Private
Sewer: Private | Septic

Land Description:
Country Setting | Secluded | Neighborhood
Lot size: 5.16 acres
Zoned: RU
Surveyed: Unk
Flood Zone: No
Seasonal: No
Driveway: Paved

Additional Information
Docs Available : Deed | Tax Map
Easement - Unknown
Block - 3
Taxes $8,782
Assesed Value Not Reported
Schools
School District: Bow School District SAU #67
Elementary School: Bow Elementary
Middle School: Bow Memorial School
High School: Bow High School

© 2000-2025 Big Green Real Estate
NEREN Logo
5 Old Nugget Alley, Hanover, NH 03755 603-643-3942
CONTACT STAR

Big Green Real Estate is not affiliated with nor officially sanctioned by Dartmouth College

Copyright © 2025 PrimeMLS, Inc. All rights reserved. This information is deemed reliable, but not guaranteed. The data relating to real estate displayed on this display comes in part from the IDX Program of PrimeMLS. The information being provided is for consumers’ personal, non-commercial use and may not be used for any purpose other than to identify prospective properties consumers may be interested in purchasing. Data last updated October 7th, 2025

PLEASE NOTE: Both New Hampshire and Vermont law require brokers and agents to disclose at the “time of first business meeting, prior to any discussion of confidential information”, in New Hampshire’s case, and “first reasonable opportunity”, in Vermont’s case, the nature of the relationships brokers have or may have with customers and clients. Each state requires that a disclosure form be presented to consumers for their review and acknowledgment at the appropriate time. These forms can be accessed at the following websites and you are encouraged to read these documents.Big Green Real Estate chooses as a business model to represent both buyers and sellers; please do not assume, without any contractual agreement otherwise, that Big Green Real Estate at this time represents your interests as an agent.
VT: VERMONT REAL ESTATE COMMISSION MANDATORY CONSUMER DISCLOSURE FORM
NH: NEW HAMPSHIRE REAL ESTATE COMMISSION BROKERAGE RELATIONSHIP DISCLOSURE FORM